Wnętrze od Zera – układ funkcjonalny online przed zakupem lub remontem
Kupno mieszkania czy domu to jedna z najważniejszych decyzji w życiu. Zwykle skupiamy się na lokalizacji, metrażu czy cenie, czasem na pierwszym wrażeniu, jakie robi wnętrze. Ale to, co naprawdę decyduje o komforcie codziennego życia, to układ funkcjonalny mieszkania.
Bez analizy układu można łatwo popełnić kosztowne błędy: kupić lokal, którego nie da się dostosować do własnych potrzeb, albo rozpocząć remont, który okaże się dużo trudniejszy niż zakładaliśmy.
Wnętrze od zera to 90-minutowe spotkanie online, podczas którego przygotowuję układ funkcjonalny Twojego mieszkania. Ty opowiadasz, co jest dla Ciebie ważne, a ja zamieniam to na konkretne rozwiązania i rysunek przestrzeni. Dzięki temu możesz świadomie podjąć decyzję o zakupie albo zaplanować remont bez kosztownych błędów.
Dla kogo jest ta usługa?
Kupujący mieszkanie lub dom
Właściciele lokali szykujący się do remontu
Rodziny, które potrzebują funkcjonalnych wnętrz
Single, którzy chcą przestrzeni dopasowanej do siebie
Wnętrze od zera jest dla osób, które:
- chcą kupić mieszkanie lub dom i nie są pewne, czy lokal, który im się podoba, będzie ustawny, pomieści wszystkie funkcje i spełni ich potrzeby,
- mają już mieszkanie lub dom (z rynku wtórnego lub od dewelopera) i przygotowują się do remontu czy wykończenia,
- nie mają doświadczenia w remontach i nie wiedzą, na co zwrócić uwagę przy wyborze lokalu,
- mają trudności z wyobraźnią przestrzenną i planowaniem przestrzeni,
- chcą świadomie zaplanować rozmieszczenie instalacji elektrycznej i wodno-kanalizacyjnej, ustalić przebudowę ścian działowych i przygotować bazę pod cały remont.
Z usługi korzystają zarówno rodziny wprowadzające się do nowego mieszkania, jak i single, którzy chcą maksymalnie dopasować przestrzeń do swojego stylu życia.
Jak wygląda usługa krok po kroku?
- Przed spotkaniem proszę o przesłanie rzutu lokalu z wymiarami oraz zdjęć. Mile widziane są również dodatkowe wymiary pionowe – dzięki nim mogę jeszcze lepiej dopasować projekt.
- Spotkanie online trwa 90 minut.
- Zaczynamy od rozmowy o Twoich potrzebach, oczekiwaniach i stylu życia.
- Na tej podstawie od razu przygotowuję warianty układu funkcjonalnego mieszkania lub domu – zaznaczam możliwe ustawienie mebli, zabudów, kuchni, łazienki, przestrzeni do przechowywania.
- Omawiamy wady i zalety różnych rozwiązań, tłumaczę ograniczenia techniczne i pokazuję, co da się zrobić, a co będzie niemożliwe ze względu na wentylację, piony kanalizacyjne czy ściany nośne.
- Po spotkaniu, w ciągu 3 dni roboczych, otrzymujesz gotowy projekt układu funkcjonalnego z opisem oraz notatkę z rekomendacjami.
Najczęstsze błędy przy wyborze mieszkania bez analizy układu
Najczęściej spotykam się z sytuacją, w której ktoś zakochał się w lokalizacji albo w tym, że w mieszkaniu „jest ładne światło”, a nie sprawdził jego aspektów technicznych.
Kilka przykładów:
- kuchnia – nie zawsze da się ją powiększyć albo przenieść do salonu, bo ogranicza to dostępność wentylacji i kominów,
- łazienka – jej przebudowa też często jest niemożliwa, bo wszystko zależy od pionu kanalizacyjnego i wentylacji,
- ściany działowe – w starych kamienicach wiele ścian pełni funkcję nośną i konstruktor musi ocenić, czy można je ruszyć,
- zabytki – w mieszkaniach wpisanych do rejestru zabytków ochronie podlega nawet układ pomieszczeń i ich funkcja, więc remontowe możliwości są mocno ograniczone,
- mały metraż – bez przemyślanego układu przestrzeń po prostu się „nie spina” i zamiast funkcjonalnego wnętrza dostajemy ciasnotę.
Co daje Wnętrze od zera?
Oszczędność pieniędzy i brak kosztownych przeróbek
Brak rozczarowania po zakupie mieszkania – nie wydajesz kilkuset tysięcy na lokal, który okaże się niefunkcjonalny
Świadome decyzje o zakupie i remoncie
Pełna świadomość możliwości i ograniczeń – wiesz, co da się zrobić, a czego nie
Gotowy projekt układu funkcjonalnego
Zamiast kosztownych przeróbek masz przemyślany plan od początku
Spokój i pewność, że przestrzeń będzie funkcjonalna
Decyzję o kupnie albo remoncie podejmujesz świadomie, a nie na ślepo
Oszczędność pieniędzy i brak kosztownych przeróbek
Brak rozczarowania po zakupie mieszkania – nie wydajesz kilkuset tysięcy na lokal, który okaże się niefunkcjonalny
Świadome decyzje o zakupie i remoncie
Pełna świadomość możliwości i ograniczeń – wiesz, co da się zrobić, a czego nie
Gotowy projekt układu funkcjonalnego
Zamiast kosztownych przeróbek masz przemyślany plan od początku
Spokój i pewność, że przestrzeń będzie funkcjonalna
Decyzję o kupnie albo remoncie podejmujesz świadomie, a nie na ślepo
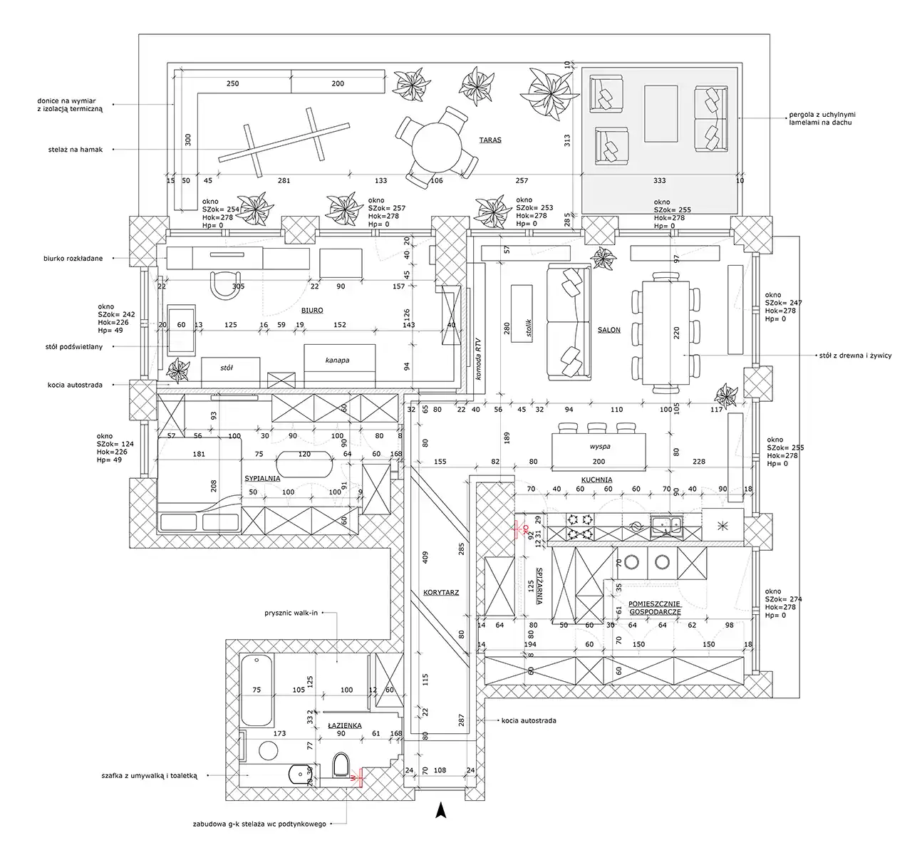
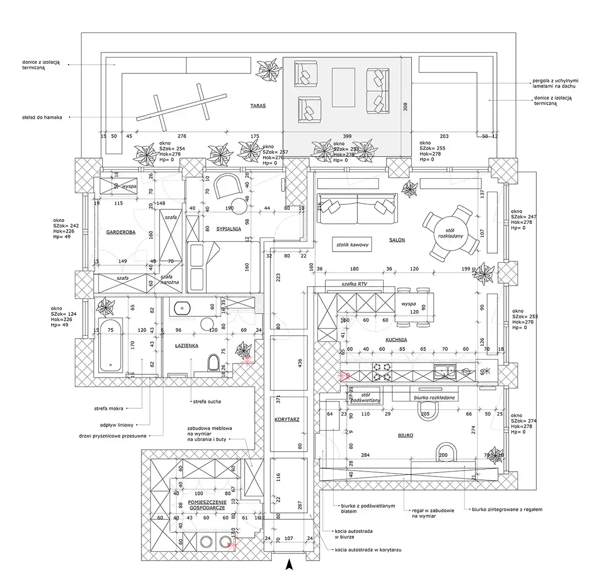
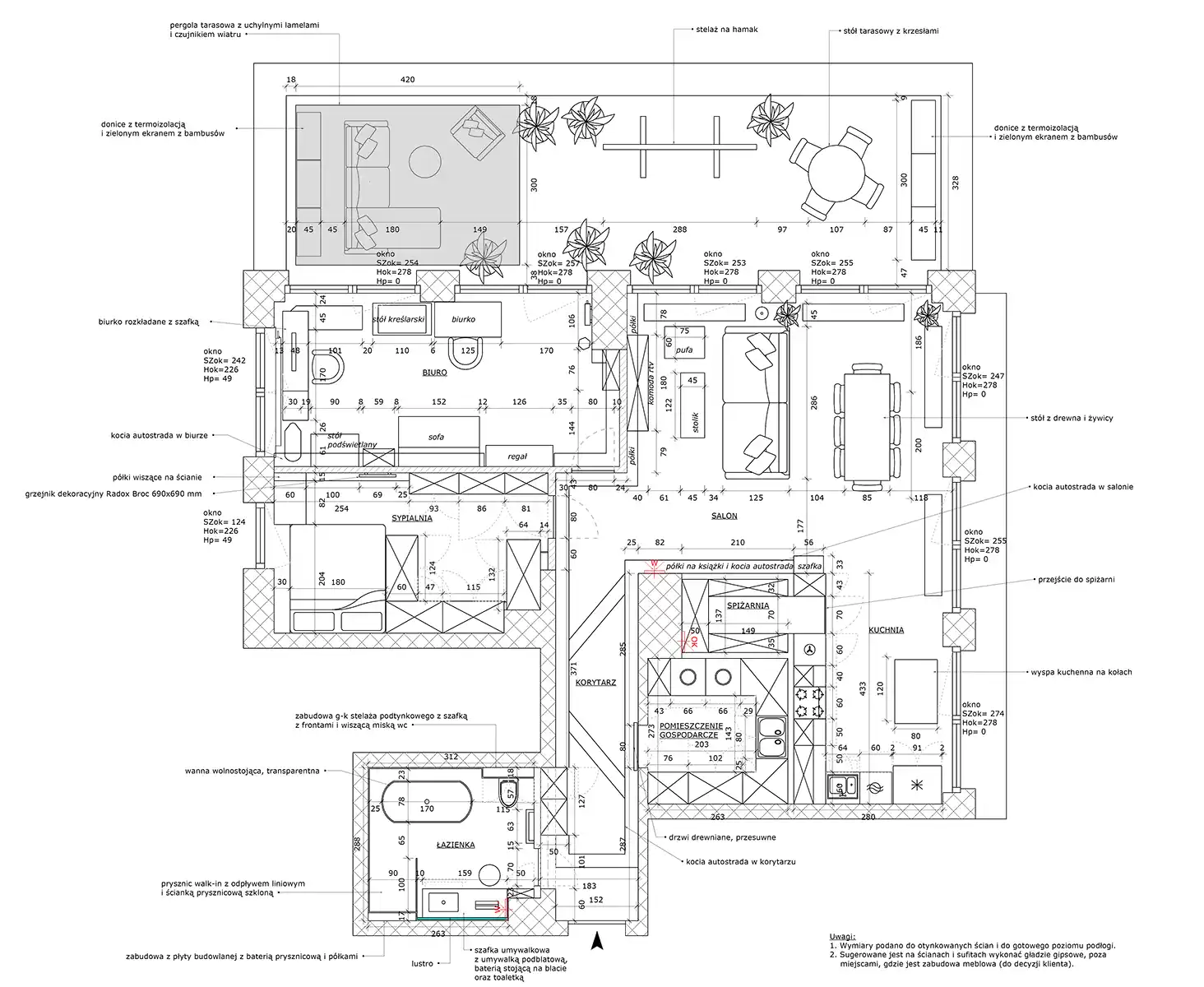
Przykład z praktyki
Jedna z moich klientek kupowała mieszkanie od dewelopera. Miała bardzo duże wymagania wobec wnętrza: potrzebowała biura, pomieszczenia gospodarczego z pralnią, dużej łazienki, kuchni z wyspą i ukrytą spiżarnią oraz salonu, w którym zmieści się wygodna kanapa i duży stół dla całej rodziny. Cechą charakterystyczną mieszkania były bardzo duże okna od strony tarasu i balkonu, sięgające od podłogi do sufitu. Dzięki analizie układu mieszkania przygotowałam trzy warianty funkcjonalne.
- Pierwszy koncentrował się na uzyskaniu jak największej powierzchni roboczej w kuchni wraz z przejściem do spiżarni ukrytym w zabudowie. Zaprojektowana została wyspa na kołach, którą można przesuwać w dowolne miejsce. Powstała sypialnia z garderobą i wyraźnie oddzieloną strefą do spania oraz pomieszczenie gospodarcze z dodatkowym zlewem, dużą liczbą szaf do przechowywania oraz pralką i suszarką.
- W drugim układzie funkcjonalnym skupiłyśmy się na kuchni ze zmaksymalizowaną ilością miejsca do przechowywania oraz wyspą łączącą kuchnię z salonem. W salonie zaproponowałam okrągły stół rozkładany, który na co dzień zajmuje mało miejsca, a po rozłożeniu pomieści więcej gości. Powstała duża łazienka z wydzieloną strefą mokrą i suchą oraz sypialnia z przylegającą garderobą.
- Trzeci układ wyróżniał się salonem z aneksem kuchennym, w którym znalazła się duża kanapa, spory stół, obszerna wyspa oraz ukryte w zabudowie przejście do sąsiedniego pomieszczenia, w którym znalazły się spiżarnia i pomieszczenie gospodarcze.
Każde rozwiązanie w inny sposób zagospodarowywało przestrzeń, a finalny wybór pozwolił spełnić wszystkie potrzeby klientki i maksymalnie wykorzystać metraż mieszkania.
Dlaczego online?
- Nie tracisz czasu na dojazdy – spotykamy się wygodnie przez internet
- Praca na żywo – w trakcie 90 minut tworzę układ funkcjonalny bezpośrednio na rzucie Twojego mieszkania, a Ty od razu widzisz różne warianty i możesz je komentować
- Szybki rezultat – w ciągu 3 dni roboczych otrzymujesz opisany rysunek układu funkcjonalnego oraz notatkę z rekomendacjami, które możesz wykorzystać przy remoncie, wykończeniu lub rozmowach z ekipą
Wnętrze od Zera
-
analiza mieszkania lub domu
-
moja opinia o możliwościach i ograniczeniach przestrzeni
-
gotowy projekt układu funkcjonalnego w formie rysunku z opisem
-
notatka z rekomendacjami dla remontu i ekipy
FAQ – najczęstsze pytania
- Na czym polega usługa Wnętrze od zera?
To spotkanie online, podczas którego analizuję układ Twojego mieszkania lub domu, przygotowuję warianty układu funkcjonalnego wnętrz i omawiam je z Tobą. Po spotkaniu otrzymujesz gotowy projekt układu funkcjonalnego z opisem i rekomendacjami.
- Kiedy warto skorzystać z tej usługi?
Przed zakupem mieszkania, żeby sprawdzić jego potencjał, oraz przed remontem, żeby uniknąć błędów przy planowaniu.
- Jak się przygotować?
Potrzebny jest rzut lokalu z wymiarami poziomymi. W przypadku niestandardowych rozwiązań przydatne będą też wymiary pionowe. Zdjęcia lokalu również będą pomocne, ale nie są konieczne.
- Czy układ funkcjonalny wystarczy żeby wykonać remont?
Układ funkcjonalny to świetna baza – pozwala uniknąć kosztownych błędów i pokazuje, gdzie najlepiej ustawić meble, ściany działowe oraz jest sugestią do rozmieszczenia instalacji. Jeśli jednak chcesz mieć kompletną aranżację wraz z moodboardami, kolorystyką i dokumentacją techniczną, zapoznaj się z moją usługą kompleksowego projektowania wnętrz.
- Gdzie znajdę więcej porad i inspiracji?
Na moim blogu publikuję artykuły o urządzaniu mieszkań, najczęstszych błędach przy remontach i sprawdzonych rozwiązaniach, które ułatwiają życie na co dzień.
Umów się na Wnętrze od zera
Nie ryzykuj zakupu mieszkania, które nie spełni Twoich oczekiwań.
Umów usługę Wnętrze od Zera i sprawdź potencjał swojego mieszkania zanim wydasz setki tysięcy na zakup czy remont.
📩 kontakt@revivodesign.pl
📞 533 580 352