You are currently viewing Case study: mieszkanie w zabytkowej kamienicy – czyli jak marzenie o luksusie rozbija się o rzeczywistość

Case study: mieszkanie w zabytkowej kamienicy – czyli jak marzenie o luksusie rozbija się o rzeczywistość

Zdarza się, że klienci trafiają do mnie z mieszkaniami w prestiżowych lokalizacjach, które miały być „spełnieniem marzeń”.

Adres zgadza się – ścisłe centrum Warszawy, zabytkowa kamienica, klimat, historia.

Problem w tym, że kamienica to nie biała kartka, tylko wpisany do rejestru zabytek z bardzo konkretnymi ograniczeniami.

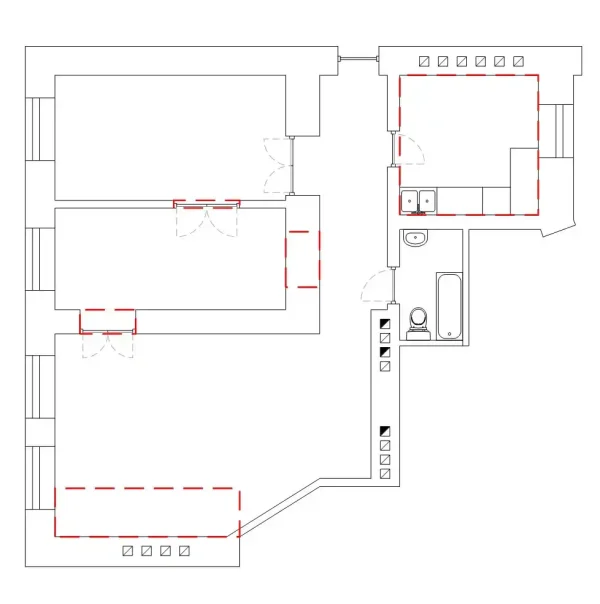
To mieszkanie miało kuchnię, łazienkę, korytarz, dwa pokoje (jeden przechodni) i salon.

Rzut mieszkania w zabytkowej kamienicy przedstawiający pierwotny układ pomieszczeń: salon, kuchnię, łazienkę i pokoje z zaznaczonymi planowanymi zmianami w układzie funkcjonalnym

Klientka chciała zrobić z tego nowoczesne, funkcjonalne wnętrze:

  • kuchnię przenieść do salonu,
  • zamienić obecną kuchnię w sypialnię z garderobą i małą łazienką,
  • zamurować dwa otwory drzwiowe,
  • i dołożyć nowe drzwi w ścianie nośnej, żeby z korytarza dało się wejść do pokoju przechodniego.

Brzmiało ambitnie i na papierze całkiem logicznie.

W praktyce? Każdy z tych pomysłów miał techniczne „ale”.

1. Przeniesienie kuchni do salonu

Żeby kuchnia działała, trzeba doprowadzić wodę, kanalizację i wentylację.

I tu zaczęły się schody.

  • Wentylacja: przewody były na ścianie z oknami, ale tylko kominiarz mógł stwierdzić, czy któryś z nich można wykorzystać pod okap.

  • Odpływ wody: wymaga prowadzenia rur w podłodze, a w kamienicach podłoga to najczęściej drewniane belki stropowe, których nie wolno przewiercać.

  • Woda: da się pociągnąć w ścianach, ale odpływu już nie oszukasz.

Realnie mogło okazać się, że żaden z przewodów wentylacyjnych w ścianie nie jest możliwy do wykorzystania, bo należy do innego mieszkania. Natomiast przeprowadzenie rur odprowadzających wodę z kuchni mogło być niemożliwe ze względu na układ belek w podłodze i niemożliwość uzyskania odpowiedniego spadku.

2. Druga łazienka w nowej sypialni

Marzenie każdej właścicielki – własna łazienka przy sypialni.

Tyle że rury kanalizacyjne mają średnicę 100 mm, potrzebują dużego spadku, a każda łazienka musi mieć osobny przewód wentylacyjny.

Czyli znowu: strop, konstrukcja, kominy, pozwolenia.

Teoretycznie można użyć rozdrabniacza, który pompuje ścieki cienką rurą, ale to półśrodek – głośny, awaryjny i ryzykowny w budynku sprzed stu lat.

3. Nowe drzwi w ścianie nośnej

Każde wybicie otworu w ścianie nośnej wymaga projektu konstrukcyjnego, opinii inżyniera i zgłoszenia budowlanego.

W przypadku remontu w zabytkowej kamienicy, należy przygotować projekt budowlany, który będzie zawierał projekty wszystkich przebudów i zmian w instalacjach, takich jak: elektryczne, hydrauliczne i wentylacyjne.

Koszt samego projektu budowlanego? Minimum 20 000 zł.

4. Zabytkowa kamienica = zgoda konserwatora

Żeby w ogóle ruszyć z remontem, potrzebna jest zgoda Wojewódzkiego Konserwatora Zabytków.

A zanim ją dostaniesz, musisz przygotować:

  • program prac konserwatorskich (ok. 5 000 zł),

  • ekspertyzy,

  • i kompletny projekt budowlany.

W tym przypadku konserwator już na etapie ustaleń powiedział jasno:

❌ nie zgadza się na zmianę układu funkcjonalnego,

❌ nie pozwala na zamurowanie ani wybicie drzwi,

❌ wymaga wymiany starych okien na identyczne okna skrzyniowe wraz z okuciami.

Koszt takiej wymiany: 36 000 zł za 5 okien.

5. Rzeczywistość vs. marzenie

Klientka kupiła mieszkanie z myślą o luksusowym apartamencie w kamienicy z sypialnią, prywatną łazienką i pokojami dla dzieci.

Prestiż lokalizacji był argumentem decydującym.

Ale okazało się, że układ i technologia budynku nie pozwalają zrealizować jej wizji.

Nie dało się przenieść kuchni, nie dało się dobudować łazienki, a nawet prostsze zmiany wymagały projektów, zgód i ogromnych kosztów formalnych.

Wniosek?

Zanim kupisz mieszkanie w zabytkowej kamienicy, bo „ma klimat”, sprawdź:

  • czy możesz zmienić jego układ,

  • jakie są ograniczenia konserwatorskie,

  • i czy Twoje plany są w ogóle technicznie wykonalne.

Bo prestiżowy adres nie zawsze oznacza komfortowe życie.

Zanim kupisz marzenie o życiu w kamienicy, warto sprawdzić, czy to marzenie w ogóle da się zrealizować.

Dodaj komentarz