You are currently viewing Dlaczego warto zrobić układ funkcjonalny zanim kupisz mieszkanie

Dlaczego warto zrobić układ funkcjonalny zanim kupisz mieszkanie

Kupno mieszkania to emocjonalny rollercoaster: oglądasz, porównujesz, liczysz raty, aż w końcu coś się „trafia”.
Cena w porządku, lokalizacja niezła, balkon wygląda przyjemnie, do tramwaju blisko. Bierzesz.
A potem zaczyna się prawdziwa zabawa: meble się nie mieszczą, kuchnia jest niewygodna, a w szafie trzeba dopychać rzeczy kolanem.

Brzmi znajomo? To klasyczny efekt kupowania mieszkania bez wcześniejszego sprawdzenia, czy przestrzeń spełni Twoje potrzeby.

Czym właściwie jest układ funkcjonalny?

Układ funkcjonalny to plan rozmieszczenia wszystkich pomieszczeń, mebli i sprzętów w przestrzeni.
Pokazuje, co się zmieści, gdzie, w jakiej wielkości i jak będzie się z tego korzystać.
To nie jest wizualizacja ani „ładny rysunek do folderu” – to narzędzie do podejmowania decyzji, zanim cokolwiek zburzysz, zamówisz lub kupisz.

Dobrze zrobiony układ funkcjonalny odpowiada m.in. na pytania:

  • czy w sypialni zmieści się szafa, a nie tylko łóżko,
  • czy w kuchni będzie wystarczająco dużo blatu roboczego,
  • czy sofa nie zablokuje przejścia do balkonu,
  • czy w łazience wejdzie pralka, wanna i prysznic,
  • jak rozplanować oświetlenie i gniazdka, żeby nie żyć z przedłużaczem pod kanapą.
Plan mieszkania z układem funkcjonalnym – propozycja ustawienia mebli, kuchni i łazienki
Układ funkcjonalny mieszkania w kamienicy w Gdańsku

Dlaczego warto zrobić układ funkcjonalny przed zakupem mieszkania

Bo na etapie oglądania nieruchomości masz jeszcze wpływ na wybór lokalu.
Z układem funkcjonalnym możesz realnie ocenić, czy mieszkanie „z potencjałem” faktycznie ma ten potencjał, czy tylko dobrze wygląda na zdjęciach z szerokiego obiektywu.

Przykład:

  • ładny salon z aneksem kuchennym? Na rysunkach dewelopera mieści się w nim wyspa, stół i kanapa, a w rzeczywistości okazuje się, że trzeba wybrać między stołem a wyspą, bo oba się nie zmieszczą.
  • sypialnia 10 m²? Brzmi dobrze, dopóki nie zmierzysz, że po wstawieniu łóżka zostaje 40 cm na dojście do szafy.

Układ funkcjonalny pomaga sprawdzić, zanim zapłacisz.
To często różnica między „mieszka się cudownie” a „codziennie potykam się o suszarkę do ubrań”.

Jak wygląda praca nad układem funkcjonalnym

  1. Analiza potrzeb – ustalamy, jak żyjesz, co musisz zmieścić i co jest dla Ciebie priorytetem (np. duży blat do gotowania czy biurko do pracy).
  2. Pomiar lub rzut od dewelopera – pracuję na aktualnych wymiarach i rzeczywistym układzie instalacji (wentylacja, kanalizacja).
  3. Trzy warianty układu – pokazuję, jak można inaczej wykorzystać tę samą przestrzeń, żebyś miała wybór.
  4. Omówienie online – wspólnie wybieramy najlepsze rozwiązanie, zanim przejdziemy do dalszych etapów projektu wnętrz lub bezpośrednio do remontu.
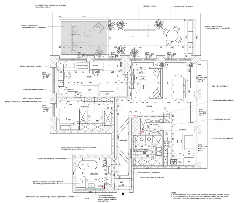
Rzut mieszkania z propozycją układu funkcjonalnego: biuro z rozkładanym biurkiem, duża łazienka, kuchnia z wyspą i ukrytą spiżarnią oraz salon z dużym stołem i kanapą.
Układ funkcjonalny apartamentu w Bydgoszczy

Co zyskujesz, robiąc układ funkcjonalny przed zakupem

  • pewność, że mieszkanie będzie wygodne,
  • świadomość, ile rzeczywiście zmieścisz, nie „na oko”,
  • oszczędność pieniędzy – nie kupujesz przestrzeni, której nie wykorzystasz,
  • spokój psychiczny, bo decyzję podejmujesz na podstawie danych, a nie emocji.

No i ten najważniejszy punkt: nie ryzykujesz, że wydasz kilkaset tysięcy złotych na mieszkanie, w którym brakuje miejsca na schowanie odkurzacza.

Układ funkcjonalny to inwestycja, nie koszt

Kupując mieszkanie, patrzysz na metraż i cenę za metr.
A ja patrzę, czy ten metraż faktycznie da się zamienić w wygodne życie.

Układ funkcjonalny to pierwszy krok, żeby Twoje przyszłe wnętrze było nie tylko ładne na wizualizacjach, ale przede wszystkim było funkcjonalne na co dzień.

💡 Chcesz szybko sprawdzić swoje mieszkanie zanim je kupisz?
Zamów konsultację Wnętrze od zera – przygotuję układ funkcjonalny dopasowany do Twoich potrzeb i pokażę, jak naprawdę będzie się mieszkać w wybranym lokalu.

👉 Umów spotkanie i uniknij kosztownych rozczarowań.

Jesteś zdecydowana na kompleksowy projekt wnętrz i mieszkasz w okolicach Bydgoszczy? Sprawdź usługę architekta wnętrz Bydgoszcz, cena będzie zawierać również wizualizacje i listę zakupów.

Dodaj komentarz